+36 30 456 7913

Leírás
Ingatlan adatai:
  • 48
  • 1
  • 1
  • 0
  • 118 500


Felszereltség
  • Légkondícionáló
  • Ágynemű
  • Erkély
  • Kábel TV
  • Kávéskanna
  • Gyerekágy
  • Mosogatógép
  • Garázs
  • Bútorozott
  • Terasz
  • Beépitett konyha
  • Távfűtés
  • Központi fűtés
  • Gáz (cirkó)
  • Gáz (konvektor)
  • Egyedi mód (kandalló, vegyes tüzelsé, stb.)
  • Lift
  • Tégla
  • Panel
  • Könnyűszerkezet
  • Villany kályha
  • Nappali
  • Riasztó
  • Redőny
  • Melléképület
  • Hőszigetelt
  • Kaputelefon
  • Pince
  • Panorámás
  • Csendes környezet
  • Viz
  • Villany
  • Gáz
  • Csatorna
  • Komfortos
  • Összkomfortos
  • Kandalló
  • Kocsibeálló
  • cserépkályha
  • Hőszivattyús fűtés
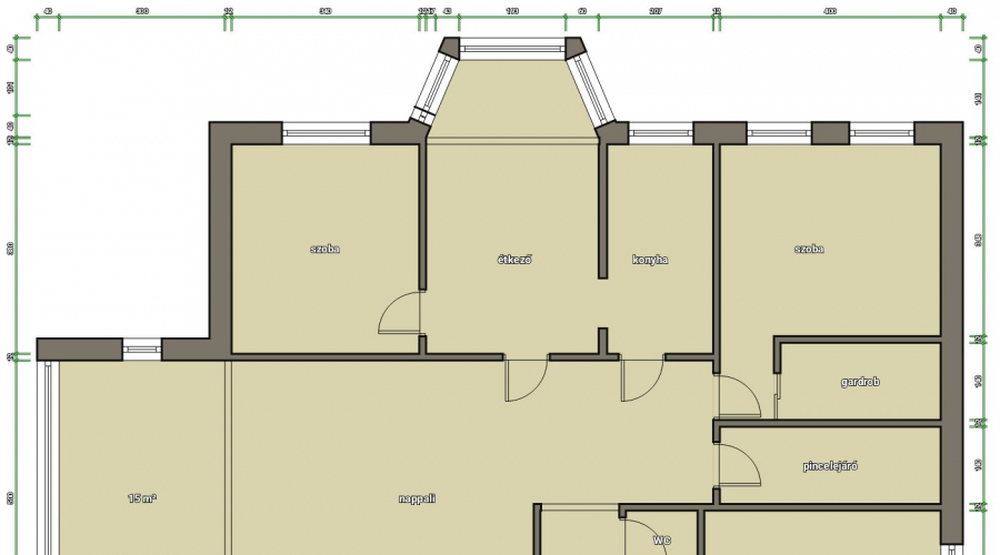
Tervrajz
Video